3190, 28 Kingsview Road SEAirdrie, AB T4A3L7




Mortgage Calculator
Monthly Payment (Est.)
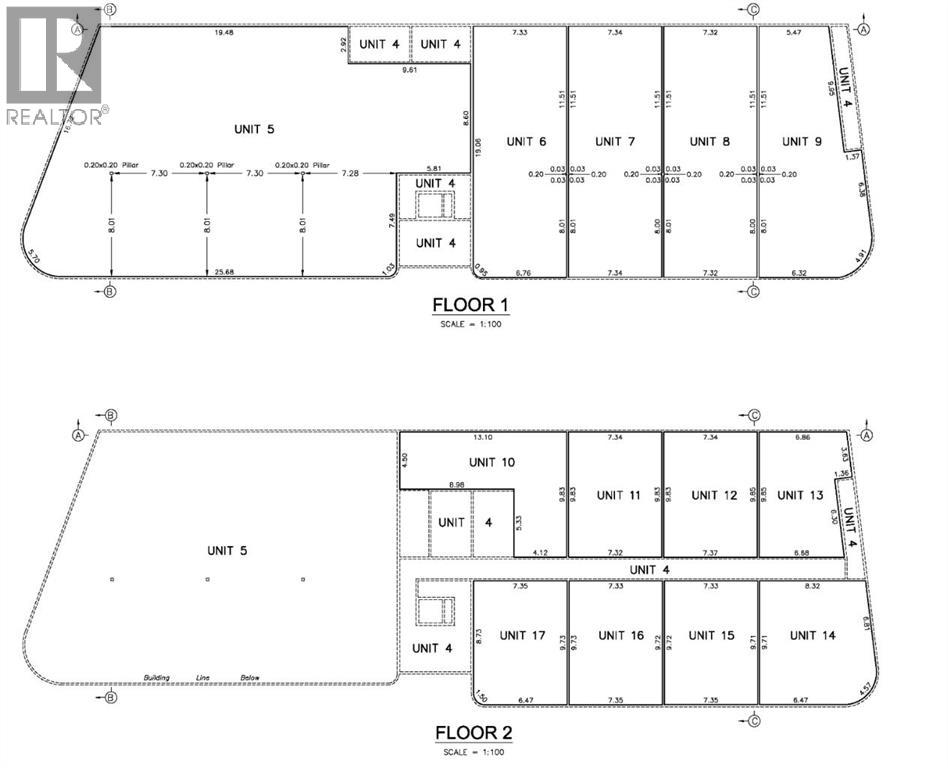
$12,319Rare opportunity to purchase a 6,235 sq. ft. shell condominium unit in a prime Airdrie location with excellent visibility from the QE2 and convenient access from Yankee Valley Blvd. This versatile commercial space offers ample parking, 24-foot ceiling height, and outstanding potential for a variety of permitted uses. A major feature of the property is the existing City approval for a second floor, allowing for expansion to approximately 10,000 sq. ft. The current owner also has approval in place for restaurant use, creating an excellent opportunity for hospitality, retail, office, or other commercial ventures. The generous ceiling height allows the option to add additional floor area or maintain an open-concept layout with the potential for impressive floor-to-ceiling glass.Zoned IB-1, this unit offers flexibility for a range of commercial and employment uses. A strong opportunity for owner-users, investors, or developers seeking exposure, accessibility, and future upside in one of Airdrie’s key commercial corridors. Electrical power is 400A, 208/120V, 3 Phase, 4 wire (TBV). Condominium parking area includes a ratio of 4.1 parking stalls per 1,000sf. (id:31684)
| a week ago | Listing updated with changes from the MLS® | |
| a week ago | Listing first seen on site |
The trademarks MLS®, Multiple Listing Service® and the associated logos are owned by The Canadian Real Estate Association (CREA) and identify the quality of services provided by real estate professionals who are members of CREA. Used under license.
The trademarks REALTOR®, REALTORS®, and the REALTOR® logo are controlled by The Canadian Real Estate Association (CREA) and identify real estate professionals who are members of CREA. These trademarks are owned or controlled by The Canadian Real Estate Association (CREA) and identify real estate professionals who are members of CREA (REALTOR®) and/or the quality of services they provide (MLS®).
This REALTOR.ca listing content is owned and licensed by REALTOR® members of The Canadian Real Estate Association.
